Logo von Lyncker Immobilien

Weingut komplett saniert mit Hof, Terrasse, Wintergarten und Werkstatträume

76829 Ranschbach

Objekt-Nr.: 160310184

399.999 €

Kaufpreis

Objektdaten

Preise

Kaufpreis

399.999 €

Käuferprovision

3,57%

Provisionshinweis

3,57 % Käuferprovision inkl. MwSt., verdient und fällig mit Beurkundung des notariellen Kaufvertrages. Der Immobilienmakler hat einen provisionspflichtigen Maklervertrag mit dem Verkäufer in gleicher Höhe abgeschlossen.

Flächen

Wohnfläche

ca. 206 

Zimmer

4

Nutzfläche

ca. 200 

Grundstücksfläche

ca. 370 

Zustand und Bauart

Baujahr

1717

Räume, Flure und Etagen

Etage

2

Badezimmer

2

Stellplätze

Stellplatz

5

Beschreibung

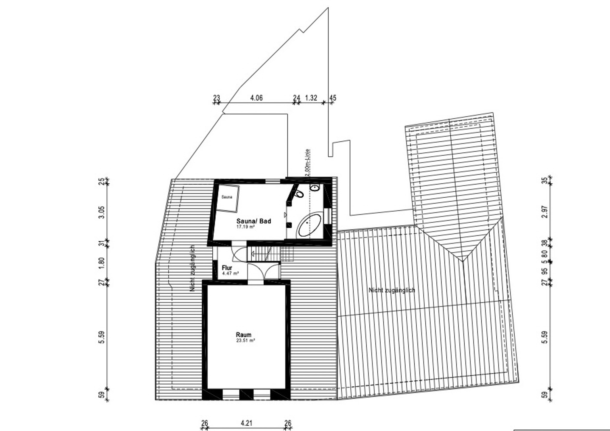
Wohnen an der Deutschen Weinstraße in einer perfekten Umgebung. Das könnte das Motto dieses bemerkenswerten Objekts sein. Die von uns exklusiv angebotene, seltene Weingut-Immobilie mit Hof, Terrasse, überdachte Stellplätze sowie Werkstatträume befindet sich in einem sehr seltenen gepflegtem Top-Zustand. Der Grundriss dieses Objekts bietet variable Raumaufteilung & die Wohnlage sorgt für angenehme individuelle Wohnatmosphäre. Renovierungsauflistung seit 2012 -Fenster im Altbau -Hackschnitzelheizung mit kompletter Installation -Elektroinstallation -Dämmung der Außenwände -komplette Wasserinstallation -Gäste-WC mit Dusche und Hauswirtschaftsraum -Bodenbelag (Vinyl und Fliesen) - neue Raumaufteilung -Solaranlage Renovierung 2014 -Pflasterung und Abwasser im Innenhof Renovierung 2015 -Duschbad mit Fußbodenheizung Renovierung 2018 -Wintergarten mit Fußbodenheizung und Terrassenversiegelung -neues Terrassengeländer Renovierung 2020 -Flur und Treppen neu gestaltet Renovierung 2021 -Gäste-WC im Innenhof Renovierung 2022 -Bad im 2.0G mit Infrarotkabine und Eck-Badewanne Renovierung 2023 -kompl-Aussenanstrich Fassade Renovierung 2024 -Dach neu eingedeckt (ältester Teil des Hauses) -teilweise neuer Anstrich der Innenräume Die Raumaufteilung entnehmen Sie den beigefügten Grundrissen. Genießen Sie schon jetzt die Vorfreude auf Ihre Traumimmobilie. Weiters bitte auf Anfrage!

Sonstiges

Bitte haben Sie Verständnis, dass wir nur Anfragen mit vollständig angegebener Adresse und Telefonnummer bearbeiten können. Wir weisen in diesem Zusammenhang darauf hin, dass Sie laut § 4 Abs. 6 und § 6 Abs. 2 Nr.1 Satz 6 Geldwäschegesetz verpflichtet sind, dem Immobilienmakler Ihre Identität nachzuweisen sowie die dazu erforderlichen Informationen und Unterlagen zur Verfügung zu stellen. Ansprechpartner: Herr Patric Lyncker Geschäftssitz: Otto-Hahn-Straße 3b 67454 Haßloch Tel: 06324-9704740 Alle Angaben sind ohne Gewähr und basieren ausschließlich auf Informationen, die uns vom Auftraggeber zur Verfügung gestellt wurden. Wir übernehmen keine Gewähr für die Vollständigkeit, Richtigkeit und Aktualität dieser Angaben. Mit der Anfrage auf dieses Objekt erklärt der Interessent seine ausdrückliche Einwilligung für die Kontaktaufnahme per Telefon oder E-Mail durch einen unserer Mitarbeiter. Alle Gespräche sind über unser Büro zu führen. Bei Zuwiderhandlung behalten wir uns Schadenersatz bis zur Höhe der Provisionsansprüche ausdrücklich vor. Zwischenverkauf ist nicht ausgeschlossen. Der Käufer zahlt im Erfolgsfall an das oben genannte Maklerunternehmen eine Käufer-Maklerprovision in Höhe von 3,57% inklusive 19% Mehrwertsteuer. Die Provision errechnet sich aus dem beurkundeten Kaufpreis. Lyncker Immobilien hat mit dem Verkäufer einen provisionspflichtigen Maklervertrag in gleicher Höhe abgeschlossen (Maklervertrag nach § 656 c BGB). Gerne stehen wir Ihnen nach Terminabsprache für eine Besichtigung zur Verfügung. Die Firma Lyncker Immobilien handelt im Makler-Allein-Auftrag

Lage

76829 Ranschbach

Die Karte dient lediglich als Orientierungshilfe und stellt nicht die exakte Lage dar. Die vollständige Adresse erhalten Sie bei uns.

Energieausweis

Energiedaten

Baujahr

1717

Energieausweistyp

Bedarf

Gültig bis

07.06.2035

Ausstellungsdatum

06.08.2025

Mit Warmwasser

Energieeffizienz

A+

A

B

C

D

E

F

G

H

0

30

50

75

100

130

160

200

250

Endenergiebedarf

168,8 kWh/(m²a)